Verkocht:Halve Morgen 85, 6931 XH Westervoort - Foto
Verkocht
+40

Halve Morgen 85 6931 XH Westervoort

  • Woonhuis
  • 5 kamers
  • 4 slaapkamers
  • Bouwjaar 1975
  • 124 m² perceeloppervlakte
  • 98 m² gebruiksoppervlakte
  • C Energielabel C

Beschrijving

Hoekwoning met riante tuin, veel bergruimte en een carport.

Deze hoekwoning is voorzien van een aanzienlijke buitenruimte. Het grootste deel daarvan is in eigendom, een deel is gehuurd van de gemeente. De nieuwe eigenaar kan de huurovereenkomst voortzetten tegen aantrekkelijke condities. De buitenruimte is als één geheel ingericht en voorzien van bestrating, een overkapping, een stenen berging, een houten berging en een carport. Kortom; liefhebbers van veel buitenruimte in combinatie met privacy moeten hier zeker een kijkje komen nemen.

Deze woning staat bij Van Ons Makelaars in verkoop! En dat is goed nieuws. Je kunt deze woning dan ook van maandag 28 juli tot en met zaterdag 02 augustus aanstaande komen bekijken. Wij maken tijd voor jouw bezichtiging en houden daarbij rekening met jouw agenda.

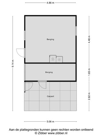
Voor de indeling verwijs ik naar de bijgaande plattegronden. Opvallend is de enorme berging ( deels hout deels steen ) van circa 30 m2. Ook is er een carport beschikbaar.

De woning is gesitueerd nabij winkels en overige voorzieningen. Vanuit Westervoort is Arnhem vlot te bereiken met fiets, auto of met de trein.

Algemeen:
De woning bestaat uit 3 volwaardige woonlagen.
De woning beschikt over een gunstig en actueel energielabel C.
Kavel Westervoort A 4312, groot 124 m2 is in volle eigendom.
Circa 100 m2 is gehuurd van de gemeente.
Het gehuurde kan door de nieuwe eigenaar worden voortgezet.
De CV ketel is in 2018 geplaats en is gehuurd.
3 slaapkamers op de eerste verdieping.
1 zolderkamer beschikbaar.
Veel stalling- , hobby of bergruimte.
Ruime zij tuin met veel privacy.

Kaart

Kenmerken

Overdracht

Referentienummer
00143
Vraagprijs
€ 345.000,- k.k.
Status
Verkocht
Aanvaarding
In overleg
Aangeboden sinds
Zaterdag 19 juli 2025
Laatste wijziging
Dinsdag 9 september 2025

Bouw

Type object
Woonhuis, eengezinswoning, hoekwoning
Soort bouw
Bestaande bouw
Bouwperiode
1975
Dakbedekking
Dakpannen
Type dak
Zadeldak
Isolatievormen
Dakisolatie
Grotendeels dubbel glas
Muurisolatie

Oppervlaktes en inhoud

Perceeloppervlakte
124 m²
Woonoppervlakte
98 m²
Inhoud
350 m³
Oppervlakte overige inpandige ruimten
1 m²
Oppervlakte externe bergruimte
30 m²
Oppervlakte gebouwgebonden buitenruimte
11 m²

Indeling

Aantal bouwlagen
3
Aantal kamers
5 (waarvan 4 slaapkamers)

Tuin

Type
Zijtuin
Hoofdtuin
Ja
Heeft een achterom
Ja
Staat
Goed onderhouden

Energieverbruik

Energielabel
C

Uitrusting

Tuin aanwezig
Ja
Heeft schuur/berging
Ja

Kadastrale gegevens

Kadastrale aanduiding
Westervoort A 4312
Perceeloppervlakte
124 m²
Omvang
Geheel perceel
Van Ons Makelaars